Sold

Excellent Location !

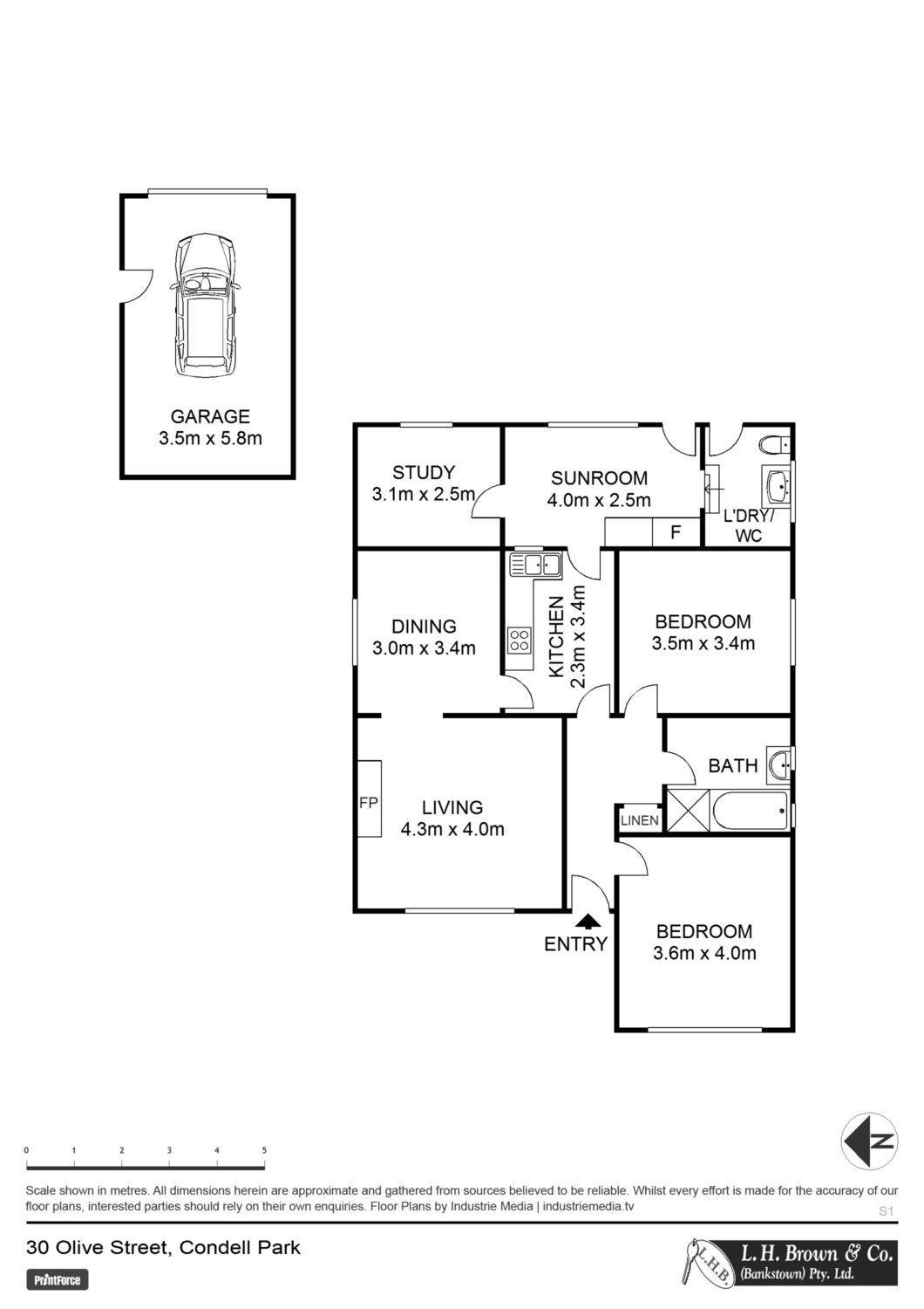
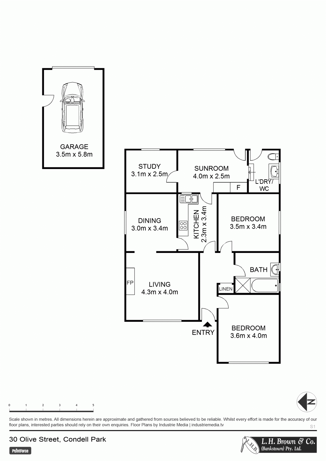
Neat & tidy 3 bedroom fibro tile home located on an excellent block of land of 622 square metres. Features include good size bedrooms, polished timber floors, updated kitchen, neat bathroom, good size backyard & lock up garage. Only a short walk away from schools & playgrounds. Bus service at the door & a short drive away Bankstown shopping centre.
3 1 1 622 m2
Address 30 Olive Street, Condell Park
Price SOLD
Property Type Residential
Property ID 1143
Category House
Land Area 622 m2

Agent Details

Mario Urizar photo

Mario Urizar

0411 177950
View Profile