Sold

Development Site or Investment !

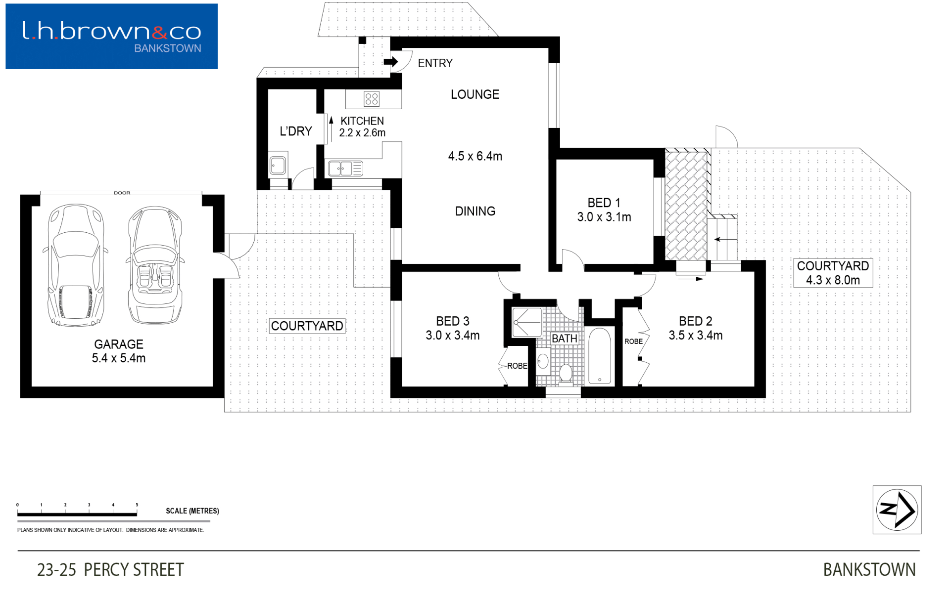
Quality complex of 5 villas located on a level block in Central Bankstown in close proximity to all amenities. Zoning allows for possible unit development with a FSR of 1.75 : 1 and a six storey height limit. Total land area of 1517 square metres and street frontage of over 30 metres. The 5 villas all come with 3 bedrooms, spacious living areas, private courtyards and lock up garages. Good rental return for investors and excellent development site for builders. Once in a lifetime opportunity !
3 1 2 1,517 m2
Address 23-25 Percy Street, Bankstown
Price SOLD
Property Type Residential
Property ID 1363
Category House
Land Area 1,517 m2

Agent Details

Mario Urizar photo

Mario Urizar

0411 177950
View Profile