Sold

Spacious 3 bedroom Apartment !

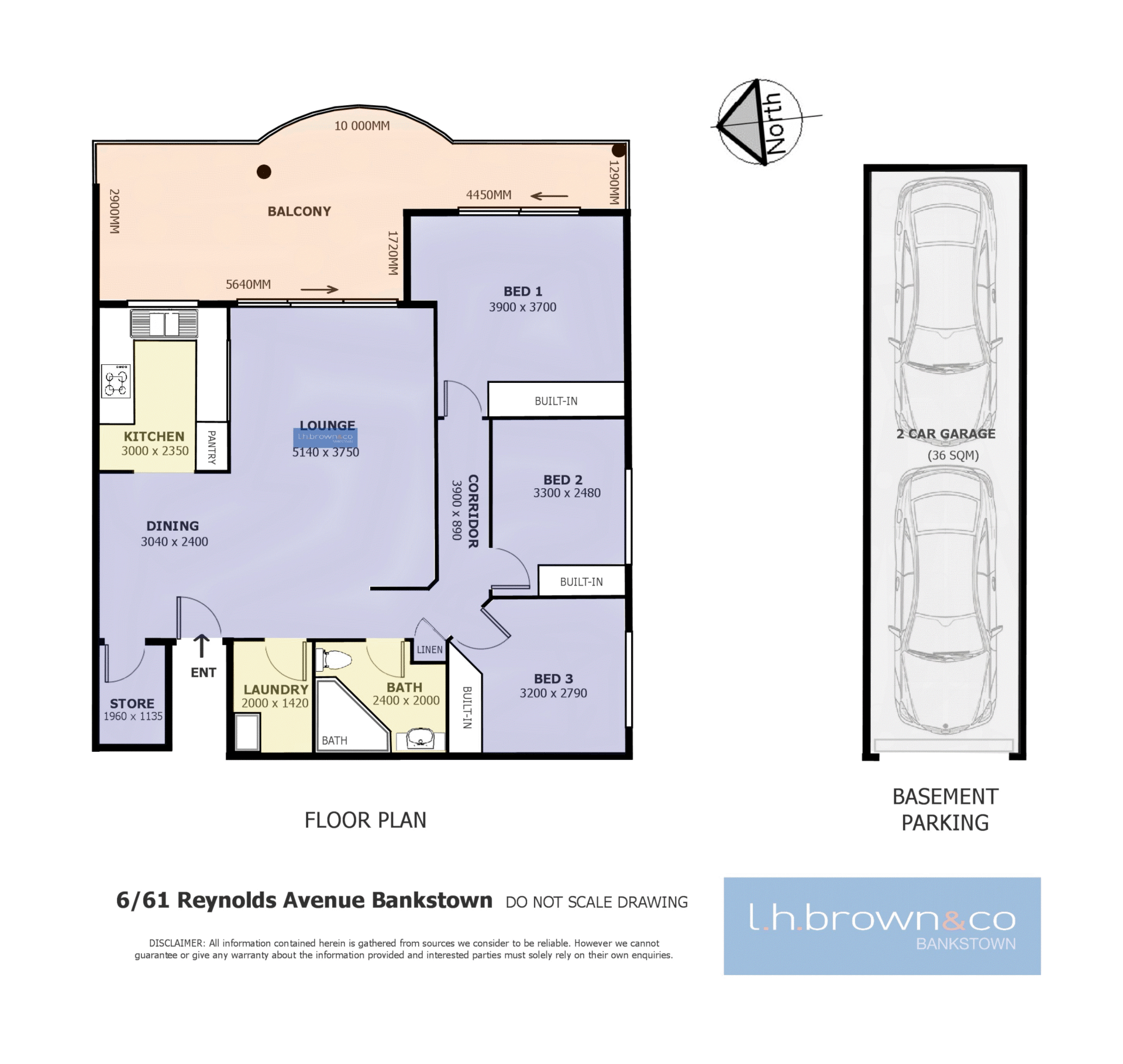
Located on the first floor of this security complex and with a total area of 149 square metres, this well designed apartment is sure to impress. Features include a good size living area, neat kitchen with gas cooking, modern bathroom, good size balcony off the lounge, internal laundry and double lock up garage. Currently leased to excellent tenants for $ 485 per week.

3 1 2
Address 6, 61-67 Reynolds Avenue, Bankstown
Price SOLD for $575,000
Property Type Residential
Property ID 1581
Category Unit
Floor Area 149 m2

Agent Details

Mario Urizar photo

Mario Urizar

0411 177950
View Profile