MODERN STRATA INDUSTRIAL UNIT

Located in Seven Hills industrial precinct and only minutes to railway / bus services. Easy access to M2, M4 and M7 motorway. Great industrial unit positioned in a well presented secure complex.

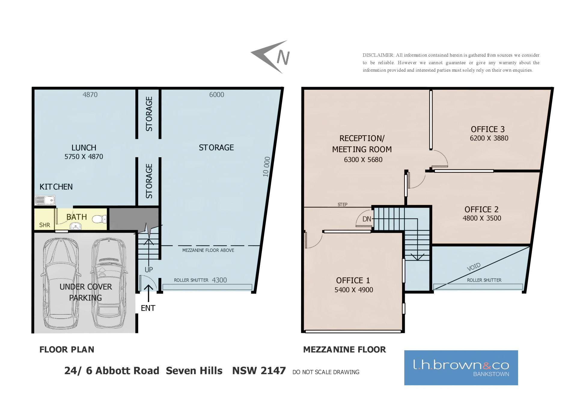
Warehouse includes amenities and shower, Kitchenette and lunch area.

Mezzanine floor is set up with 3 offices, reception area, large glass windows providing plenty of natural light.

Total floor area of approx 180 square metres. Two car spaces on title.

Rent: $32,000.00 pa + GST and outgoings.

2
Address Factory 24, 6 Abbott Rd, Seven Hills
Price SOLD
Property Type Commercial
Property ID 1670
Category Industrial/Warehouse, Showrooms/Bulky Goods, Offices
Office Area 90m2
Warehouse Area 90m2

Agent Details

Peter Pisani photo

Peter Pisani

0419 411 513
View Profile