Low maintenance yard

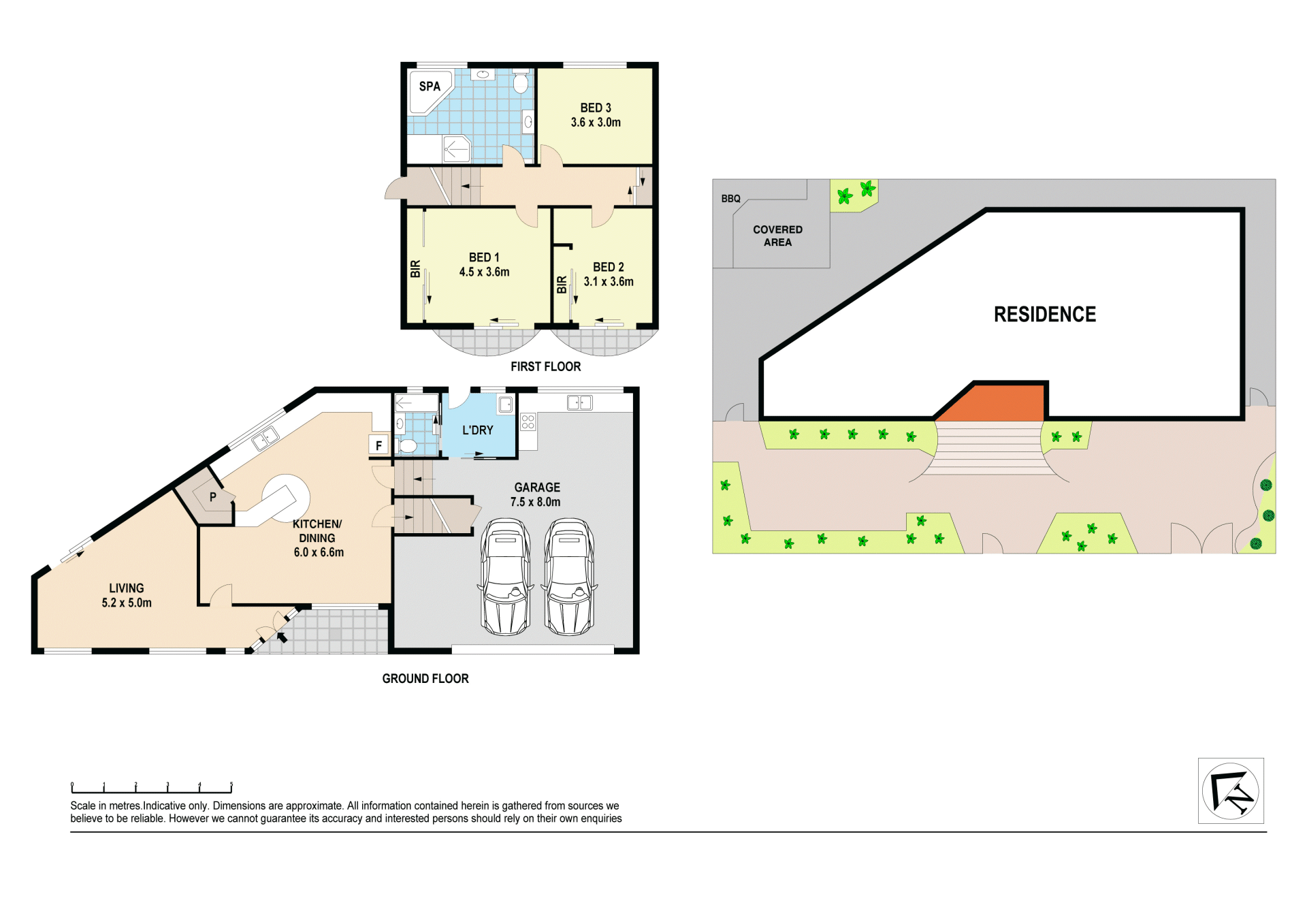
Spacious 3 bedroom split level brick home located in close proximity to shops, schools and transport. Features include spacious living areas, tiled throughout, large modern kitchen with gas cooking and ceaserstone bench top, two bathrooms, main bathroom with spa, huge double lock up garage and storage area with second kitchenette. Low maintenance courtyard with lovely under cover BBQ area. Ducted air conditioning, alarm, electronic gates, intercom, shutters, and many more extras. Total land area of approx 320 square metres.

3 2 2 320 m2
Address 39A Augusta Street, Condell Park
Price SOLD
Property Type Residential
Property ID 1911
Category House
Land Area 320 m2

Agent Details

Mario Urizar photo

Mario Urizar

0411 177950
View Profile