Leased

4 Bedroom Duplex !

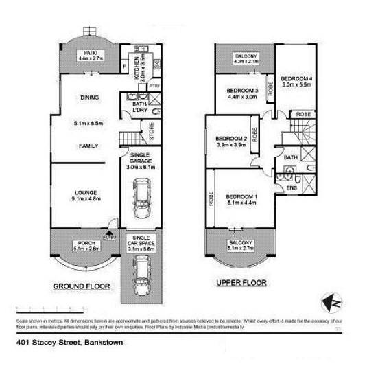
This beautiful duplex has been designed for modern living and fitted with quality materials and appliances.
Featuring 4 good size bedrooms all with built in wardrobes, main with en suite, spacious main bathroom, lounge and family room. Beautiful kitchen with gas cooking, ducted air conditioning, large balconies, single lock up garage plus carspace and a good size yard.


4 3 2
Available Leased
Address 401 Stacey Street, Bankstown
Price $950 pw
Property Type Rental
Property ID 3146
Category Duplex Semi-detached

Agent Details

Voula Urizar photo

Voula Urizar

02 9709 2399
View Profile