Ultra-Convenient Brick Residence on Haldon Street!

Discover the perfect blend of comfort and convenience in this charming 2-bedroom brick home, ideally situated just footsteps from shops, schools, and the vibrant heart of Lakemba centre.

Enjoy the ease of a 3-minute walk to Lakemba Metro Train Station, 7-minute walk to Hampden Park Public School and the convenience of Woolworths right across the road.

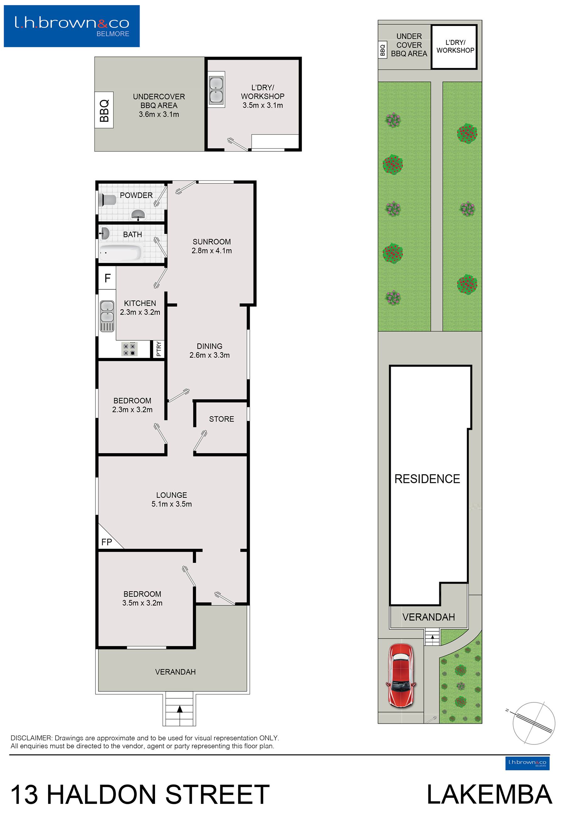
  • 2 Bedroom Full brick home
  • Separate Lounge & Dining
  • Off street parking with Car port
  • Air-conditioning
  • Side access to rear yard
  • Undercover BBQ Area
  • Laundry\Workshop-Storage
  • Zoned B2 (7.62m x 45.72m) 347.8sqm approximately

This is a rare opportunity to secure a piece of popular Haldon Street, Not to be missed!

Contact us today for more information and a private inspection.

 

 

 

 

2 1 1 347.80 m2
Address 13 Haldon St, Lakemba
Price SOLD
Property Type Residential
Property ID 3322
Category House
Land Area 347.80 m2

Agent Details

Chris Kostopoulos photo

Chris Kostopoulos

0411 120 449
View Profile